母屋の台所兼食堂の改修工事中。

キッチン解体中の写真
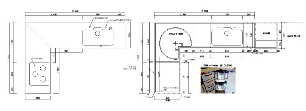
こちらのキッチンの特徴は、キッチン手前の上部に垂れ壁(差し鴨居のある構造部)があることで、内法高さは1720~30で吊戸が隠れる低さです。
改修前はI型のキッチンでしたが、動線や使い勝手を検討してL型のキッチンに変更することになりました。
キッチンは大工さんに造作で作っていただきますが、家電置き場や普段使いの食器収納場所含めて計画をしました。
L型のコンロ部が垂れ壁の手前側になるため、レンジフードのダクトのルート確保やエアコンの配管ルートなども検討し、将来の取り替えも対応できるようにしました。

キッチン図
全体的に引き出し収納が多いのですが、お施主さんは料理の専門家で一升瓶の調味料もたくさんお有りとのことで、一升瓶の入る引き出し収納も設けました。

天板図とキャビネット図
天板はステンレス製で、寸法などを決めてオーダーします。(シゲル工業)
L型キッチンはコーナー部分の天板面が調理スペースとして広く使えるのがメリットですが、下のキャビネット内部が活用がしづらくデッドスペースになりがちです。今回の計画は3/4の回転棚(パーツ部品)を利用します。

造作キャビネットの上にステンレス天板が設置されたところ。
計画時にはキッチンの配置を何案かご検討いただきましたが、今までと同じく窓に向かってお料理をされたいというご要望でこの位置に配置することになりました。こうして出来てくると、キッチンの正面に窓があるのはとても気持ちがいいですね。窓から駐車スペースも見えるので、キッチンに立ちながらご家族の出入りなども確認できそうです。

横から見たところ。垂れ壁と垂れ壁の後ろの空間。
吊戸の位置が高く垂れ壁がある事で吊戸内の収納物が取り出しにくくなるため、今回は電動昇降式の吊戸を使うことにしました。(メーカーの商品)
正面の上部の壁はレンジフードやエアコンのダクトスペースとして壁で囲んでいますが、将来のメンテナンスのために前面はパネルにして取り外しできるようにします。

天板を納める大工さん。天板がピッタリ納まるように内部の側板を細かく加工してくださっていました。ジャストフィットです。

一部見えている造作吊戸は高さを低くしています。下の段はアイレベルで使いやすい高さなので、食器なども収納し易いと思います。開き戸にすると開いた時に頭に当たる高さなので引き戸にします。この吊戸の下には幅60㎝弱の家電収納棚を造作で作っていただきます。その右隣は冷蔵庫置き場になります。